2022年3月31日木曜日

戸建賃貸市場、新たに。

 一服感があった戸建て賃貸市場ですが、わたくしはこれからが新たな本番だと見ています。しかし今までのような、「いかにも賃貸」ではファンがつかず家賃設定によっては苦戦するでしょう。

現在、建築資材高騰により超ローコスト系の新築住宅価格も上がっています。世界的に見ても以前の価格まで下がることはないと思います。

そーすると、夫婦所得合算でギリギリローンを組んで持家を建てていた層は、ローンアウトとなり建てられなくなります。結果、一生賃貸層が増えて求められる品質+環境が変わってきます。

ファミリー層であれば、寛ぎ空間+たっぷり収納(超ローコスト系住宅では実現しなかったこと)、そして休日楽しめる中庭やウッドデッキエリアなど、新築した同世代が逆にうらやむような高テイスト+クオリティーが必要となるでしょう。

この時、自分たちが使える明確なゾーンと余裕の駐車場(新築した気持ちと同じように友人を呼ぶ)が必須。間口2,500mmの番号に留めるのではない「ゾーン戦略」が必要。

賃貸だけど戸建てを建てた友人より楽しい暮らしが実現できることで満足感が得られる ! 

「仕方なく賃貸に住んでいる」ではなく、ライフスタイル(住宅ローンリスクヘッジ)として、「賃貸を選択している」となることが大切ですー

2022年3月30日水曜日

「松茂」靴スペース。

 「松茂」には玄関ドア開けますと、土間ローカ・長さ2間があります。この土間ローカはリビングの一部ということになります。

段差を少し高めにつけて、その隙間に靴を収納できるようします。これによりスモールオフィスとしても来客に対応しやすいんです。

リビングの一部が土間空間って落ち着くんですよねーブラッシュアップが進むうち、自分で住みたくなって参りました(笑)

2022年3月29日火曜日

「松茂」隣地環境で気をつけること。

 「松茂」は、敷地間口10mに建物巾3,640×2棟を新築しますので、隣地間距離が約900ずつぐらいしか取れません。

隣地は、北西東の3方向。裏側・北側隣地は、敷地が細長いため少し余裕がありますので、西側東側の隣地間とA棟B棟の建物間の考え方です・・・

西側隣地の建物は1F東側に洗濯干し場があるので、プライバシー的にどう対処するか重要ですが、東側隣地建物は隣家の西側にあたるので小窓しかなく大丈夫そうです。

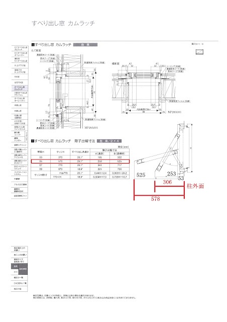
AB棟の900間(申請上の配置は450)にも採光・通風のため小窓を設置していますが、横滑り出しや縦滑り出しの場合その出幅も考慮しなければなりません。せまい場合、引き違いは目線が合うので、できるだけ避けたいです。

たとえば、こちら・・・

横滑り出しH=570の通常の出幅は306ですが、掃除する時にロック解除しますと578出っ張る訳で、578×2=1156。柱面からなので芯からですと1156+105=1261ないと両方から掃除する時はバッティングしてしまう。

なので、位置をずらしたり縦滑りなら吊元を逆にしたりしています。

隣と言っても同じ賃貸仲間の隣とご近所の隣では感じ方が違いますよね。この辺りわたくしは結構気を使っています・・・

2022年3月28日月曜日

調整区域での開発行為厳格化4月~

 調整区域内での条例宅地申請を大家さんから依頼されておりました。本日、3月中に無事下りてまいりました !

4月1日からは、調整区域内・浸水区域3m以上であれば開発行為等が厳格化されます。

今後、人口減少に対応するコンパクトシティー化に向けて厳格化の動きは調整区域だけでなく、津波警戒区域や崖等々にも広げていくみたいです。

皆様も土地を購入する際は、その案件ごとにご相談ください。その道のベテラン行政書士が役所協議して調べてくれますので。

また、業者が開発許可・検査済証を取得している場合であっても、1戸建て1棟以外に何が建てられるのか、案件ごとに違いますので要注意でございます。

お気軽に・・・

2022年3月26日土曜日

「松茂」階段途中で・・・

 安藤忠雄氏が寄贈した中之島の図書館は階段途中に座り込んで読書するようなっていましたね。

「なんと比べよん ? 」とのお声が聞こえてまいりましたが、「松茂」もそうなります(笑)

確認申請は疾うに下りていますが、ブラッシュアップを進める内「軽微な変更」で済ますつもりが、「設計変更」の運びとなりました(笑)

次々こーしよ、あーしよ、と出てくるもんです~

2022年3月25日金曜日

キャストと脚本。

 U-NEXTのサブスクに入っておりまして、俳優だけでなく映画監督としても著名なクリントイーストウッドさんのドキュメンタリーを拝見いたしました。

その中でクリントイーストウッドさんは、映画の出来栄えは、脚本とキャストでほぼ決まるとおっしゃっておりました。なるほど、その通りだと思いましたねー

では、賃貸事業の良し悪しは何で決まるのか ? 考えてみました。わたくしの思う良い賃貸物件とは・・・

①ターゲットを明確にしたストーリー性のある高品質な商品力

②オリジナル性に合うエリアでお得感がある適正な家賃等設定

以上が、重要ポイントかなと・・・クリントさんほど説得力がないけど(笑)

2022年3月24日木曜日

値上り、全体では。

 詳細見積りを見てみますと、商品の15%~30%程度値上がっているケースが多いですね。

建物全体から見てみますと、値上がっていない商品と労働賃金が含まれますので、以前の木材単価(やはりここが一番、影響大)を除外しますと全体では数パーセントになりますかねー

賃貸の場合、金額が大きいので数パーセントでも大きいですよね。

2022年3月23日水曜日

建築業界、値上がり対応セミナー。

 このごろ建築資材値上げの混乱を受けて業界・工務店向けのセミナー案内が弊社にもチラホラ舞い込むようになりました。

値上がりの最新情報や納期の遅れる資材などへの具体的な対応・取り組みを紹介したりするようです。

やはり、これから先が更に大きな影響が出ると予測されています。

給料は変わらず物価全てが上がっていく厳しいインフレが世界的に続くのは必至・・・これで経済格差はさらに広がりそう。

昨日、持ち家をあきらめなくてはならない世帯が増加するといいましたが、大家さんも同じことです。建築費は上がり家賃は変わらずで、融資がつかない大家さんが増加するでしょう。

平時よりこーゆー混乱時期こそ勝負時、なんか燃えてきましたぞ(笑)他大家さんが様子見の時に挑戦+行動して目立つべし !

2022年3月22日火曜日

超ローコスト住宅衰退 ? 、プレミアム賃貸時代へ。

 このごろ、建築資材高騰で今後市場がどうなるのか ? 頻繁に考えるようになりました。それは、今の高騰が一過性ではないと見るようになったからです。

わたくしは、注文住宅経営30年していた経験がございます・・・新築される施主年齢は年追うごとに低くなり、世帯年収も低くなっていきました。その背景で超ローコスト住宅メーカーが全国を席巻することになったのです。

夫婦合算で世帯年収400万円台で坪単価の安い土地に超ローコストメーカーの家を35年~40年ローンで建てるリスキーなケースは昨今珍しくありません。

これは、金融庁の老後資金2,000万円必要枠から完全に外れていますので、老後破綻の高リスクを抱えています。

これだけ建築資材が上がっていきますと、ローコスト住宅自体成り立たなくなり、新築・持ち家を建てられない世帯が増えてくると思います。

そもそも、「家賃がもったいない」などと新築のためにめいっぱいローンを組む低所得世帯は日本だけらしいですぞ。

では新築・持ち家が実現しなくなるとどうなるのか ? 中古住宅に移る ? いえいえ、中古住宅はいくらお得に見えてもなぜか日本人には流通しません。

そこで、以前からある話。持家派か賃貸派か ! 

首都圏では買えない層・マス層がほとんどなので、これを同じには扱えませんが、地方もこの議論が盛んになってくると思います。

住宅ローンを組めない世帯+一生賃貸派が増加し、求められる賃貸も変化してくるでしょう。

現在は、「賃貸ってこんなもんでしょ」的な物件ばかりですが、これからは「これなら新築・持ち家より楽しい暮らしができそう~」みたいなプレミアム物件の需要が強くなるはずです。

入居者から見て本当に魅力的な賃貸が存在してなかったので、地方ではこの議論にならなかったのでは ?

そこで弊社の(笑)楽日々シリーズ見学会に入居希望の方々が見えて、「こんなん、もうないん ? どこかで建つ予定ないん ? 」と何度も聞かれたことを思い出したとです。

結論、建築資材高騰により新築・持ち家が持てない層が地方にも溢れ、今後プレミアムで付加価値の高い賃貸だけ需要が高まると見ました。

現在、市場に建てられているほとんどは大手ハウスメーカーの企画型です。競合相手が巨大でも物件ごとに勝つのは簡単 !! 

一つ一つにオリジナル性+圧倒的な付加価値を持たせて建てていけば、需要がドンドン増えていくゾーンに当てはまる。

つまり「賃貸市場は」とかって、ひとくくりで表現できないプレミアムゾーンを生み出していくということが求められるのではないでしょうか。

そーすると、「楽日々シリーズ」になるねー(笑)

2022年3月21日月曜日

徳島経済面の記事で。

 以前、ラクソラハウスを徳島新聞記者の方に取材いただいた時に、徳島経済面の経営層の人紹介みたいなのに出していいですか ? っと顔写真を撮りました。

それが土曜日に掲載されていたのですが・・・

懐かしい方から「社長~載ってますねー」っとLINEいただきました。弊社メインバンク昔の担当者さんからでした。あの小さな記事を良く見つけましたね(笑)

現在はえらくなって他県で支店長を務められております。久しぶりに3連休を利用して徳島に里帰りしたそうです。

さっそく、ラクカフェ+ラクソラの完成写真をアルバムにして送信しましたところ、大好評でございました~

この方は、若い時から勉強熱心でもっとえらくなると思いますねー(笑)

2022年3月19日土曜日

「松茂」3m柱で160mm足らん ?

 スキップフロアになっている「松茂」を見直し中であります。

1Fと2Fの間に大収納階がある「つまえるハウス」やスキップフロアの共同住宅版「SKIP HOUSE」は4m柱を使用しています。通常3m柱のところを4m柱にしますので、その分コストアップになります。

「松茂」は5層階のスキップフロアですが、3m柱で計画しましたので高さがたいへんシビアであります。

基礎の高さを160mmだけ一般の基礎高より上げて計画しました。その高さ分ですと通常基礎のメタル型枠が使用できますし、鉄筋のピッチもそのままで大丈夫だからです。

しかし、それでもこの基礎高・割増コストが高いようでしたら、4m柱をカット使用したほうが良い訳でして。今、その試算比較中なんですが・・・

足らないその寸法は、たったの160mmなんです。ん~悩ましい。

2022年3月18日金曜日

急遽、見積り打ち合わせ~

 本日、以前よりご依頼受けておりました計画案見積りをまとめる予定で、「3連休いずれかお打合せどうですか ? 」と大家さんに打信しましたところ、「今日の夕方ならいけます」とおっしゃるので、急ピッチで仕上げていました(笑)

フゥ~できました !

来社お待ちしております~

2022年3月17日木曜日

ウッドショック、さらにロシアの影響。

 集成材の原木にロシア産が多く集成材から米松に変更する動きがあるようです。

合板も表面にロシア産の単板を使用しているみたいで高騰している合板不足に拍車がかかりそうです。

このままロシア・ウクライナ情勢が続きますと、今年夏ごろには去年より供給状況が悪化するとの見方が出てきました。

また不謹慎かも判りませんが、ウクライナで生産しているBMW車用部品が供給されず、わたくしが1月発注しました新車の納期もつきません~

これは待てばいいのですが(笑)ちょくちょく建築資材需給状況をお知らせします。

2022年3月16日水曜日

花粉で・・・

 毎日1時間ウォーキングしておりますが・・・昨日から花粉で目がしょぼしょぼになります。

目薬差して、スプレー顔に振りかけておりますが、コンタクトレンズが浮いてきます~

もともと近眼でありまして、これに老眼が進入してきておりまして(笑)

さらに花粉で黄砂で目がかすんで見ずらいとです。皆さんはどうですか ?

2022年3月15日火曜日

建築資材の値上げ、広範囲に。

 去年、「ウッドショック」という木材高騰の場面がありましたよね。12月ピークで少し下がっていくと思いましたが、微減限定的でありました。合板+羽柄材等は今も上がっています。

弊社、取引先との仕入れ価格を建築資材全般・事前に決めておりますので、実行予算をはじく時は積算数量を自社で出して試算していました。

しかし、これだけ広範囲+短期間に値上げ基調となりますと、その都度取引先業者に見積りを出すようにしました。見積りを依頼するたびになんかが上がっております。

もう34年間この建築見積りに携わっておりますが、こんなことは初めてです。2021年12月ラクカフェ、2022年2月ラクソラと自社で完成させてまいりましたが、もうすでに同じ金額では建ちません~

この値上げ傾向は仕入れ先+メーカー等関連業者に尋ねてもまだまだ続くとみているのが大方のようです。ウクライナの事案もこれから供給不安定を生んで影響してくると思います。

建築費が上がっても家賃に反映できればいいんですけど。

とにかく、寝て待つのか ? 熟考して行動するのか ? この数年の動きが後々結果(差)として表れそうです。

そこで、わたくしの見解・・・数年後に振り返ってみたら、「あの時まだましだったなぁ」となるような気がします。

2022年3月14日月曜日

「松茂」のブラッシュアップ進む。

 建築コストを抑えつつ、ブラッシュアップを試みていますが・・・

「リビングに土間をつくる」「リモートコーナーの天井高を上げる」「玄関を少し広げてスッキリ空間にする」「洋室を少し広げて収納を増やす」「ポーチの土間を空中スラブにする」等々、コストは上がる一方(笑)

図面を睨んでおりますと、ついつい良くしてしまう~

ラクソラは1棟土地取得価格375万円、「松茂」は300万円なので差額75万円建築費アップに抑えたらいいと思ってたのですが・・・さらに熟考いたしますっ。


2022年3月12日土曜日

SKIP HOUSE 、PIT HOUSE 、また満室 !

弊社、徳島大学生向けにSKIP HOUSEとPIT HOUSE 計18戸・所有しております。その18戸の内、今春7戸分が卒業退室されました。
おめでとうございます、学生生活の中でスキップフロアの住居で楽しんでもらえたのではないでしょうか。

今年は、管理会社HPに2月初旬掲載されると同時に7戸全て埋まりました。しかし、これは前期試験合格予約というもので、合格すれば契約・不合格なら白紙撤回という申し込みとなっています。
前期試験合格発表の3月7日HPを見ますと、3戸掲載されておりましたので7個中3戸分が不合格だったということになります。
この不合格の確率はコロナ禍でネット予約を受け付けるようになってからかなり上がっています。ただ弊社物件は、そのあと8日9日の二日間で前期合格者が3戸全てスグ契約となりましたので、無事満室となりました。

しかし、本日が後期試験でありまして後期試験合格予約で埋まった場合、不合格者が出ますと次の一年間までほぼ空室となってしまいます。

なので一度満室になっている物件でも最後は結構空室が出てしまっています。重要なのは満室ということでなく、一番に選ばれるポジションにいないといけないということなんでしょうー

2022年3月11日金曜日

敷地調査、ドローン撮影も。

 プラン依頼されております敷地の現地視察に久米監督と行ってまいりました。外周状況や敷地と道路との高さ・排水経路など見てきました。

給排水に関しては、後程図面持参で設備業者さんが役所協議してくれます。

っで、少し眺望が臨めそうだと聞いていたので、久米監督が慣れてきましたドローン撮影を2Fバルコニー高さまで飛ばして撮影したであります。

便利ですねー5m弱の高さまで飛ばして・・・ちょっと目線下げたりして撮影、さらに横回転しながら撮影と。

2022年3月10日木曜日

条例宅地申請、進む。

 市街化調整区域・浸水想定3m以上エリアの開発行為厳格化が4月から始まるので、大家さんからのご依頼・条例宅地申請を急ピッチで進めております。

現地測量や進入路の役所協議など終わって提出直前であります。

なんとか滑り込みセーフだなと思っておりましたら、行政書士さんから連絡があって「徳島市長リコール」の署名提出があったので、各課より駆り出されて確認にあたっている模様だとか。

そーすると、スピードが落ちるかもとのことですが・・・

課長クラスから、なんとかしますとお答えいただいているみたいで、ひとまず安心しました。こーゆー場合、専門的に慣れた行政書士でないといけませんので、皆様もその際はご相談ください。

2022年3月9日水曜日

定休日利用して運転免許の更新へ。

 運転免許更新に行ってきました。松茂といっても楽日々ではなく、運転免許センター・元空港です。ジャンボを呼び込むとか言って空港は随分遠くなりましたね。

はい、ゴールド免許ですっ(笑)

わたくしは毎回「安全協会なんとか」で2,000円支払っています。昔は「安全協会いいですか」と言っていましたが、少し支出問題があって、「できたら安全協会お願いできませんか」になって現在では更新手数料3,000円支払ったあとに、「安全協会をお願いしているのですが・・・」っと段々謙虚になっております(笑)

3,000円の更新手数料に対して任意の2,000円ですから、バランス的に支払う方が少ないのも頷けますね。

「安全協会」2,000円支払いますと手続きを手伝ってくれてビニール袋にちょっと資料をくれます。このビニール袋を持つということは「安全協会」vip対応となるのです(笑)

わたくしの中ではグリーン車に乗っている感覚・・・ゴールドいっても講習30分あります。

その講習担当の方々ですが、だいたい安全(あんぜんをあんじぇん)と言っているの知っていますか ? なので、じぇんこくではへいしぇい○○~となるのです。

2022年3月8日火曜日

期待が高まる「松茂」

 楽日々シリーズ第三弾・松茂の変更に次ぐ変更打ち合わせを設計事務所としておりました。

弊社では、わたくしが設計・CAD入力して平面・立面を仕上げます。

確認申請の際には、そのデータを設計事務所にお渡しして不足図面(矩計図+伏図+壁量計算等々)を作成してもらって法規上の数字を記入しつつ申請してもらっております。

この「松茂」一旦確認申請は下りているのですが、設計変更を提出します。

設計事務所の方も「これはややこしい、何べん見てもわからんところがある~」っとおっしゃっておりまして・・・さらに役所の担当者も「よ~わからん、この辺の断面書いてきて」などと言われたようです(笑)

わたくしが勝手気ままに方眼紙に書いて書いてしている時は「なんとかいけるだろ」で書いておりますが、詳細の高さを含めて構造を精査し、細かな施工方法+収まり詳細を決めていきますと・・・なるほどややこしいです。

まぁ~皆さん、見学されたら驚かれるのは確実です ! 

あ~それからコスト見直しのつもりが、アップしております(笑)

2022年3月7日月曜日

外観デザインにこだわるポイント。

 アパート式・共同住宅の場合は一定の制約がありますが、戸建て賃貸となると気をつけなければならないポイントがあります。

外観デザインの質感に大きく影響してしまう、それは・・・エアコンのダクト配管と室外機、さらには竪樋の位置です。

一般住宅の新築においても竣工してキレイなぁ~と思っていると、ある日突然エアコンのダクトと室外機が表れて台無しになることがしばしばあります。

エアコンは間取り作成+外観デザインと同時にダクト配管+室外機位置を計画しておかなければなりません。まず、顔となる道路から良く見える面にはこれらは下ろさないようにして、見えにくいエリアに設置する必要があります。

軒樋・竪樋に加えて、バルコニー排水竪樋も同様に計画が必要です。

これから新築住宅を見かけたら注目してみてください。エアコンダクト位置+室外機・・・真正面や玄関口にあったらアウトです(笑)

どうしてもそこしか設置できない場合もございますが、ラクカフェ・ラクソラとも顔にはこれら一切ございません。

2022年3月5日土曜日

戸建てのオーバーハングは、重要ポイント。

 楽日々シリーズの見学会に来られた大家さんからプラン計画のご依頼を賜りました。戸建てで勝負します。

まず・・・敷地図に給排水配管スペース・駐車スペース・プロパン庫+ゴミSTなどをざっくり落とし込んでみます。空いた土地に建物スペースを確保しますが、採光と道路斜線は同時に考慮していきます。

入れていきますと何棟なのか ? の判断になります。1LDKラクソラタイプか、2LDKラクカフェタイプか、およその大きさとのバランスを並行しつつ間取り変更を書き込んでいきます。

なんとか2LDKの小さいバージョンが入りそうです。しかし、収納スペースや洋室の広さなどがも少しほしい。

ここからが本領発揮 ! 

毎度毎度のギリギリ作戦を敢行したうえで、飛び出してくるのがオーバーハング作戦(笑)2Fを1Fより跳ね出す戦術です。

1Fは駐車スペースでこれ以上使えない時など伝家の宝刀を繰り出すとです(笑)

これはデザイン的にも作りこみやすく凹凸のフォルムが質感を高めていくとです。自画自賛を繰り返しながら、良さげなプランが進行中であります。

自由設計の強みは利回りに必ず反映してくれますぞ~

2022年3月4日金曜日

条例宅地申請、現地打ち合わせ。

 市街化調整区域内での条例宅地申請というのは、開発許可行為にあたり、越えなくてはならないハードルがいくつか存在します。

大家さんよりご依頼いただいて、今回打ち合わせを重ねながら役所と協議を重ねつつ方向性を見出してきました。

今日はその土地の外周や土地の高さ、給水・排水経路に加え勾配なんかを現地にて測量士さん+久米監督と確認も含めて打ち合わせてきました。

役所からも現地視察に来てたみたいで、細かな見解もこちら側に届いています。

このあと、「こーするからここはかんべんして」的なお話を交えながら協議を繰り返してお墨付きをいただくとです !

2022年3月3日木曜日

どうなる、建築資材価格。

昨年以来、ウッドショック+アイアンショックなど原材料の高騰により建築資材・住設等の価格上昇が続いております。

ここにきてロシアのウクライナ侵攻で需給バランスが崩れて右肩上がりの取引価格が予想され始めています。

もうこれは様子見段階ではなく、早い方がまだ安い感が大方の見方のようですね~

2022年3月2日水曜日

松茂、模型作成 !

松茂松茂と呼んでおりますが、ご存じない方のために・・・
これは楽日々シリーズ第三弾の松茂町で5月から着工します、単身者向け多層構造スキップフロア戸建て賃貸のことであります。
こちらを今ブラッシュアップ中でありますが、多層構造のため縦空間の重なり具合がたいへん解りずらい~
なので、最終案が決定しましたら、模型を作成しよーと思います。
こちらは、ネット拝借した画像ですが、このような断面の解る模型がないと意図自体も伝わらないと思いまして。
っというか、私自身も「ここの高さ、どーなるんかいなっ」と3Dイメージしずらいところもありまして(笑)

多層構造は「SKIP HOUSE」や「つまえるハウス」もそうなんですが、決定的に違うところがございます。
それは一般的な二階建ては、通常3m柱を使用しますが、SKIPは1F2Fとも4m柱、つまえるは2Fのみ4m柱を採用して高さを確保したうえで縦空間を生み出しているんですね。

しか~し、今回の松茂は1F2Fとも3m柱でセンターに吹き抜け部分と階段があって、右に左にと居室空間をスキップしながら縦へ縦へとつながっている構造なんですね。

これでよくお解りになったと思います(笑)

2022年3月1日火曜日

調整区域は、さらに要注意 !

 市街化調整区域内の開発許可基準が、今年4月1日から厳格化されるようです。自然災害が増加して熱海土砂災害が引き金になったのでしょう。

こちら・・・

新築する際に確認申請書(各建築指導課)なるものを提出しますが、それ以前に調整区域などで必要になるのが、開発行為(各都市計画課)であります。大掛かりな開発だけでなく、条例宅地などの比較的軽微な申請も対象となります。
その主な内容ですが・・・
①災害レッドゾーンと②浸水ハザードゾーンの二つがございます。①は地滑りや急傾斜・土砂災害など最も警戒が必要なエリアの開発原則禁止。
②浸水想定地域の開発厳格化。浸水想定というのは、徳島県ハザードマップで見られます。調整区域内で浸水想定3m以上なら、越えなくてはならないハードルがあり、二つから選択します。
一つは、浸水想定3mならそれ以上に建物の床を上げる。
もう一つは徳島市などが指定している浸水避難場所までの避難経路+方法を提出して、安全だと認められた場合のみクリアできます。

ちょうどOB大家さんから調整区域・浸水想定エリアで条例宅地申請の準備をすすめておったところであり、慌てて測量士+行政書士に動いてもらっております。
役所側も手探り状態のようですが、今は3月31日までに通そうと急ぎ足でございます。。。

Contact us資料請求・お問い合わせは
受付時間/10:00〜16:00 定休日/水曜日・日曜日・祝日
COPYRIGHT 2015 Kurashi-design Corporation.
ALL RIGHTS RESERVED.